Chassis Truck is primarily designed to support circuit breakers, transformers, and other components in withdrawable switchgear. It facilitates the pushing and extraction of the chassis. As an auxiliary operation, it connects components and busbars. When operated with the internal mechanism of the circuit breaker and the interlock mechanism of the mid-placed cabinet, it meets the interlock requirements of the “5 Preventions” stipulated in GB3906. The specific functions are as follows:
The circuit breaker can only be closed when the handcart is in the testing, isolating, or working position. When the handcart is in the locked state, this prevents misconnection and mismatched isolation contacts with the load.
If the handcart is in the working position or moves 110mm away from the testing/isolating position, the earthing switch fails to close, thus avoiding unintentional operation of the switch.
When the earthing switch is closed, the handcart cannot shift from the testing/isolating position to the working position, preventing the circuit breaker from closing inadvertently.
Once the chassis enters the cabinet and moves away from the testing/isolating position, the handcart cannot be drawn out of the cabinet.


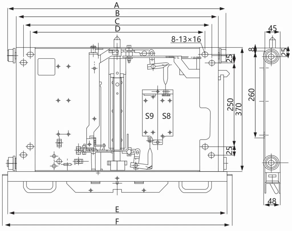
Note: There are five types of lock plates available for selection. The standard specification is 8B.141.012. If you require any of the other four lock plates, please specify your choice when placing the order.
| Product Type | A | B | C | D | E | F |
| DPC-4-650 | 500 | 450 | 410 | 385 13×30 | 502 | 535 |
| DPC-4A-650 | ||||||
| DPC-4-800 | 650 | 600 | 560 | 520 | 652 | 685 |
| DPC-4A-800 |

Phone: +8613736779975
E-mail: sales@vcbbreaker.com
Address: 66 Punan Road, Yueqing Economic Development Zone, Zhejiang, China
የቅጂ መብት © 2025 ያንግሪ ኤሌክትሪክ ቡድን ሁሉም መብቶች የተጠበቁ ናቸው
ይህ ድህረ ገጽ በድረ-ገጻችን ላይ ምርጡን ተሞክሮ እንድታገኝ ኩኪዎችን ይጠቀማል።